Email: info@greatforest.hu
CONTACT US NOW
+36 706360566
  • Home
  • Properties 
    • Sale
    • Rent
  • Our Services 
    • Sales
    • Rentals
    • Property Management
  • Blog
  • About us
Properties Téglás, flat

Téglás, flat

  • Greatforest Office
  • Téglás, flat
  • Téglás, flat
  • Téglás, flat
  • Téglás, flat
  • Téglás, flat
  • Téglás, flat

Property Detail

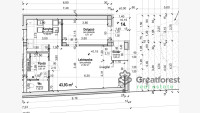
Reference number 125884 Main types Flat Type Flat City Téglás Location - Area 44 m2 Rooms 2 Floor Ground floor Price 49 900 000 HUF
144 638 USD
Status Sale

Property Description

FEATURED LISTING IN DOWNTOWN TÉGLÁS
- WITH A PRIVATE GARDEN! A newly built ground
- floor apartment with garden access is for sale in the center of Téglás—an ideal choice for a home or an investment. Key details: 44 m² (1 room) 20 m² private, fenced
- in garden Delivery: End of 2026 If you are looking for a modern, energy
- efficient, and low
- maintenance property with a private garden, this apartment is an excellent opportunity. Apartment highlights: Ground floor, direct access to the garden 20 m² private, fenced
- in garden
- ideal for relaxation or keeping a small pet Premium
- quality finishes A+ energy rating, low utility costs Custom interior design options available at this stage Courtyard parking with paved surface Gas floor heating Location: In the heart of Téglás, with all essential amenities—schools, kindergartens, shops, post office, and bus stop—just a few minutes’ walk away. Why you should decide now: Available at this year’s prices Supply is steadily decreasing Apartments with garden access are in high demand Excellent investment opportunity, easy to rent out Don’t miss out on this opportunity—reserve it now.

Property Features

No information

Find this property on map

Contact

Photo from
+36706360566
info@greatforest.hu
Greatforest Office

Similar Properties

  • Flat

    Debrecen, City Center

    In the city center of Debrecen, next to the Main Station, on the 3rd floor of a tidy condominium, a cozy apartment of 47 m², living room + 1 bedroom, ...

    47 m2
    Rooms: 2
    125383
    49 700 000 HUF
    144 058 USD
    More Details »
  • Flat

    Debrecen, Kassai Campus Area

    In Debrecen, near Kassai út Campus, on the 4th floor, 55 sqm, 2
    - room brick
    - built condominium APARTMENT TO BE RENOVATED is FOR SALE! Features:
    - 2 separate ...

    55 m2
    Rooms: 2
    126581
    49 000 000 HUF
    142 029 USD
    More Details »

Find Property

Rooms
Price
Area
Search Property

Contact us

+36 706360566

 

Contact info

  • Phone: +36 706360566
  • WhatsApp: +36 706360566
  • Viber: +36 706360566
  •  4032 Debrecen, Komlóssy út 47. fszt.
  •  info@greatforest.hu
© Copyright 2014 - 2026 by Greatforest Real Estate  -  Privacy Policy
Powered By Nano.
Greatforest Real Estate